i intended that MUSIC FOR ONESELF v2 would comprise 11 sounds produced by 19 loudspeakers hidden around the Anton Bruckner Privatuniversität and a web app made up of 37 texts arranged in a modular fashion, guiding visitors of the university’s Tag der offenen Tür 2016 through a solitary and partially imagined musical experience, giving them instructions for where to go, what to listen to, and what to imagine, but also allowing them to create their own chain of events, their own imagined sound story.
in the end, however, i did not finish the app by the time of the event, therefore, visitors were instructed to just walk around the building and look for the hidden loudspeakers. 2 days later, i hid the loudspeakers again and provided several colleagues (who also presented music at the event) with an example (page-based) of an imagined sound story that could have been generated by the app.
below is the example i provided my colleagues with, as well as the sounds that were heard from the loudspeakers and photos of the places in which they were hidden (red loudspeaker symbols show where loudspeakers were placed). also, notes on how the sounds were produced and how visitors reacted to them are added in square brackets. this is followed by the architectural plan of the building and several additional sounds and (incomplete) texts. the post ends with information about the loudspeakers that were used.
MUSIC FOR ONESELF v2 – an example
DANCING SERVERS, part 1 of 2
enter Stiege 1, walk down the stairs to floor -2, turn left, and continue until you reach the closed door of the Serverraum. as you go, clear your mind and focus on the sounds around you. read on when you get there.
DANCING SERVERS, part 2 of 2
standing in front of the closed door, notice the buzz and pounding rhythms coming from the loudspeaker above it, as well as the short clicks and high beeps that occasionally interrupt the sound. imagine that whenever these interruptions occur, the door opens, a much deeper version of the sound is heard, and a room full of dancing servers is seen. over the course of about half a minute, these interruptions should become longer and longer, and over the course of another half a minute, short again and then longer again (but not as long as they were before). afterwards, read on.
[changes in the electromagnetic field around the battery of a MacBook Pro (13-inch, 2012) translated into sound (see SRF18-cb_2tpc-lt). note that i wanted to place the loudspeaker behind the door of the Serverraum, but this was not allowed by the university. in addition, during the university’s Tag der offenen Tür, the stairs to the room were blocked, as can be seen in the photo below.]

DELVING INTO
keep on opening the Serverraum's door in your mind whenever the interruptions occur, and after a couple of interruptions enter the room. imagine a huge labyrinth of servers, each producing the sound heard from the loudspeaker, and explore it until you realize you are lost. suddenly, the sound should become louder and rougher until you find yourself again in front of the closed door of the Serverraum. afterwards, read on.
LONG CREAKS
imagine that a series of long creaks accompany the sound coming from the loudspeaker. some of the creaks should sound simultaneously, others separately, and one of them should be particularly slow, as if it is extremely stretched, continuing much longer than all the others. during this exceptionally long creak, imagine that the Serverraum's door opens again and the deeper version of the sound is heard once more, but this time, rather than dancing, the servers should seem completely exhausted. when that long creak ends, an additional creak should follow it, also considerably long, but still somewhat shorter, gradually fading out after the door is closed. afterwards, read on.
METAPHORS FOR SOUNDS
walk up the stairs and take the elevator to floor 1. in the elevator, you will hear different voices saying a word or two every five seconds. think of these words as metaphors for sounds and imagine musical interpretations of them. if you do not understand a word, just repeat its pronunciation in your mind. read on when you reach floor 1.
[metaphors used in the German Wikipedia page to describe Bruckner’s first symphony read by text-to-speech voices. note that visitors repeatedly turned off this loudspeaker.]
BURST OF NOISE
exit the elevator, keep the last musical interpretation in your mind (or the pronunciation of the last word if you did not understand it) and imagine that it gradually becomes more and more distorted. at the same time, repeatedly mute the sound you imagine for increasing time intervals yet at a steady rate, creating almost a pulse and ending after a minute or two with a short burst of noise. afterwards, read on.
REAL AND IMAGINED, part 1 of 3
standing with your back to the elevator, go right and then immediately right again, and you will see a mailing box from which the sound of a crowd talking is heard. read on when you get there.
[this sound. the loudspeaker was taped to the outer, bottom part of the mailing box, since i was not allowed to open it (the red arrow points at the loudspeaker). note that when i hid the loudspeakers 2 days after the university’s Tag der offenen Tür, the secretary complained “i cannot work because of the noise” and asked me to turn off the loudspeaker.]
REAL AND IMAGINED, part 2 of 3
listen carefully to the pitch contours of the voices and imagine that they are played on musical instruments of your choice. for about a minute, alternate between the real sound and your imagined instrumental version of it, as if comparing a painting to its subject. afterwards, read on.
REAL AND IMAGINED, part 3 of 3
try to focus on the contour of a single voice as long as you can, imagining that the pitch contour of only this voice is being played by the musical instruments you chose. whenever you lose track of it, imagine that one of the instruments breaks apart, and try to follow the contour of another voice with the instruments you have left. read on when all the instruments are broken.
HIGH AND HARSH, part 1 of 3
facing the mailing box, turn around and go right until you see lockers from which a slow rubbing sound and sporadic short rumbles are heard. read on when you get there.
[the combination of changes in the electromagnetic field around the left-bottom part of the hard drive of a MacBook Pro (13-inch, 2012) translated into sound (see SRF18-cb_2tpc-lt) and a recording of slowly rubbing a wooden table with the plastic box in which a Zoom H5 was packed (recorded with a Zoom H5). 3 loudspeakers were placed inside different lockers, and every 6-8 seconds the sound came from a different loudspeaker. note that i did not lock the lockers and visitors could turn off the loudspeakers (or steal them), but nobody did so.]
HIGH AND HARSH, part 2 of 3
when you are there, try to find the exact lockers from which the sounds are heard. afterwards, read on.
HIGH AND HARSH, part 3 of 3
open one of the lockers and observe how the sound changes when it moves from the closed lockers to the open one. whenever it is heard from the open locker imagine that a high tone accompanies it, starting soft and becoming harsher and harsher for each time the sound is heard again from that locker. when it becomes too harsh for you, close the locker and read on.
FOR THE BRAVEST, part 1 of 3
facing the lockers, go left and when you see the exit to the terrace, turn right. as you go, recall from time to time the high tone from the previous text, still starting soft and getting harsher, but over much shorter periods of time. read on when you find the exit to the terrace.

FOR THE BRAVEST, part 2 of 3
exit to the terrace and focus on your breathing, imagining that it is amplified and heard from the trees far away from you. go towards the trees, and as you get closer to them, the breathing should become louder and louder, as if the trees were breathing with you. read on when you are standing next to them.



FOR THE BRAVEST, part 3 of 3
imagine that the trees abruptly become silent, and the sound of your breathing comes from a small loudspeaker hidden among them. walk around and try to find where the sound comes from. recall how looking for the loudspeakers in the lockers was, however, this time, whenever you get close enough to the loudspeaker, imagine that it suddenly changes its position. try at least three times before giving up and read on.
UNDERGROUND MUSIC, part 1 of 2
go back to the building the same way you came. as you turn your back to the trees, imagine that they are breathing with you again, becoming softer as you go away from them. after you enter the building, go straight and turn right, and you will see a small tree in a big flower pot from which radio-like noises and short musical fragments are heard. read on when you get there.
[i used the same Max patch i had used for Remains of abandoned places, combining noise, 2 electronic improvisations recorded by me in 2014, and this recording of Gesualdo’s “Moro, lasso, al mio duolo”. for MUSIC FOR ONESELF v2, i replaced “Moro, lasso, al mio duolo” with this recording of Bruckner’s first symphony. note that when i hid the loudspeakers 2 days after the university’s Tag der offenen Tür, someone dug in the flower pot and turned off 1 of the 2 loudspeakers from which this sound was played.]
UNDERGROUND MUSIC, part 2 of 2
listen to the flower pot for a while and then focus on the musical fragments, imagining how they could possibly continue. consider yourself an archeologist trying to fit back together broken pieces found under the ground. read on when you are done.
MELODIC THREADS, part 1 of 3
facing the flower pot, go right, left, and continue along the corridor until you notice the sound of digging through trash, coming from a trash bin close to the wall. read on when you get there.
[a shortened version of stuckJunk. note that a couple of times visitors took the loudspeaker out of the trash bin and placed it next to it. they did not turn it off, however.]
MELODIC THREADS, part 2 of 3
listen to the trash bin for a while and then imagine that additional trash bins producing similar sounds appear around you every few seconds. read on when the space is full of trash bins.
MELODIC THREADS, part 3 of 3
suppose that long threads are loosely hung from the trash bins and follow the twisted shapes that the threads make on the floor, as if they were contours of melodies hummed by breathy voices, forming a polyphonic texture of growing complexity. after about a minute, when the texture is complex enough, imagine a large crowd surrounding you, creating a noisy tumult. immerse yourself in the sound for another half a minute and then read on.
REARRANGED ELEVATOR
let the tumult fade out, find the closest elevator and take it to floor -1, paying attention to all the sounds that it makes (also while you wait for it). after you exit the elevator, recall those sounds in your mind but rearrange their order. imagine at least two different orders before you read on.
DULL NOISE
imagine an additional order, and in the middle, suddenly replace the elevator sounds with a soft dull noise, intermittently interrupted by a few pauses but persistently continuing. explore for a while this unusual imagined situation in which nothing is audible except that dull noise. afterwards, read on.
SHORT SQUEAKS
on top of that dull noise, short squeaks are to be imagined, occurring when it is particularly quiet around you, or otherwise, if it is never quite or always quite, just once in a while. read on after about 15 squeaks.
ONLY LISTENING 2, part 1 of 2
standing with your back to the elevator, go left and then right, and continue to the end of the corridor, where you will see another small tree in a big flower pot from which sounds are heard. read on when you are there.
[loudspeaker 1: the combination of a slowed-down version of a recording of me rubbing with my fingertips the plastic box in which a Zoom H5 was packed. loudspeaker 2: etv2-3and4-2and4-4-GP_dZH5v1, and etv4-5and5-1-GP_dZH5v1 (see exploring_the_voice). note that visitors repeatedly dug in the flower pot and turned off the loudspeakers.]
ONLY LISTENING 2, part 2 of 2
listen to the big flower pot for a while. have a seat and read on when you are done.
SLIGHT IRREGULARITIES, part 1 of 2
go back to the elevator and this time take it to floor 2. after you exit the elevator, go left and then left again, and continue along the corridor until you see a first aid medical cabinet from which fast and squeaky rubbing is heard. as you go, clear your mind and focus on the sounds around you. read on when you find the first aid medical cabinet.
[rubbing a wooden table with a thin wooden strawberry tray.]
SLIGHT IRREGULARITIES, part 2 of 2
open the cabinet (push where it is written "push") and listen carefully to the sound. whenever you detect irregularities in the rhythm, prolong the pitches you hear in your mind for a couple of seconds. when there is a pause, imagine a sustained tone, starting soft, gradually becoming louder and quickly disappearing after the rubbing resumes. read on after about a minute or two.
DIFFERENT SIZES
suppose that the size of the cabinet from which the sound is coming drastically and unexpectedly changes, and imagine the effect it will have on what you hear. as before, continue to prolong the pitches of the squeaks in your mind, but also imagine that they gradually stay for a longer and longer durations until they are sustained almost regardless of irregularities in the rhythm. then, change the size of the cabinet once again to a third, different size and immediately afterwards to a fourth different size, and alternate between these four different sizes for another minute. afterwards, read on.
YELLOW STAINS, part 1 of 2
close the cabinet and go left until you reach the entrance of Stiege 1, the stairs where you have started this example of MUSIC FOR ONESELF v2. read on when you get there.
YELLOW STAINS, part 2 of 2
enter Stiege 1 and focus on the yellow stains on the walls. considering them to be graphic scores, imagine a musical interpretation of one of the walls (the bright yellow stains represent pitches, and the various shades of gray in the background represent different noises). read on when you are done.

RAPID FLUTTERING
choose another wall and imagine another musical interpretation. this time, however, pay attention also to other graphic elements - words, numbers, drawings, etc. - and every time your eyes meet such elements, imagine the sound of a rapid, noisy fluttering, interrupting the pitches and noises. read on when you are done.


VIBRATING BENCH, part 1 of 2
walk down the stairs to floor 1. exit Stiege 1, go left, and continue to the end of the corridor, where you will see a small table and a black bench (with yellow backrest) from which deep and noisy sounds are heard. as you go, keep the last musical interpretation in your mind, and transform it in a way that the noisy fluttering takes over the texture until there is no trace to what the yellow stains represented. read on when you get to the small table and the black-yellow bench.
VIBRATING BENCH, part 2 of 2
sit on the bench and try to find the point at which the vibrations are the most intense. stay at this point for about half a minute and then gradually move away, move back, move away again and move back again. repeat this two or three times and read on.
[alternating between performing the first exercise from exploring_the_voice and producing tremolos by hitting a thin strawberry tray with an electric frothing wand whose stick was slightly bent (the loudspeaker was fixed below the bench). note that when i hid the loudspeakers 2 days after the university’s Tag der offenen Tür, someone turned it off .]
SHAKING WALLS
imagine that not only the bench is vibrating, but also the walls are shaking, and the point at which you sit controls not only the intensity of the vibrations coming from the bench but also the intensity of the shaking of the walls. move along the bench to create a counterpoint to the audible sound and read on when you are done.
INSIDE, OUTSIDE, IN-BETWEEN, part 1 of 3
stand up, go straight and then right, and take the elevator to floor -1. in the elevator, you will hear again voices saying a word or two every five seconds. as before, imagine a musical interpretation of the words you hear. read on when you reach floor -1.

INSIDE, OUTSIDE, IN-BETWEEN, part 2 of 3
exit the elevator, go right, exit the building, and observe how the sound of the space is different inside the building, outside the building, and in the small room in-between. walk back and forth a few times and read on.
INSIDE, OUTSIDE, IN-BETWEEN, part 3 of 3
go back inside the building and recall how each of the three spaces sounded in your mind. begin with following the original order: inside the building, in the small room in-between, outside the building, in the small room in-between, inside the building, and so on. after about half a minute, try a different order, and over the course of another minute, make more and more variations in the order as well as in the duration given to each space. afterwards, read on.
FAINT MELODY
on top of that irregularly changing sound of the space, imagine a faint tone whose pitch differs for each space, creating a soft three-tone melody sounding in rhythmic unison with the changes in the space. then, let the changes in pitch and space gradually desynchronize and read on when they become completely independent of each other.
HIGH AND FRAGILE
imagine that the faint melody stops and a high and very soft fragile tone is heard. after about a minute, abruptly cut it and read on.
INNER SILENCE
finally, stop listening to any sound, both physically and mentally, and try to imagine for about half a minute complete silence no matter how loud it is outside. the end.
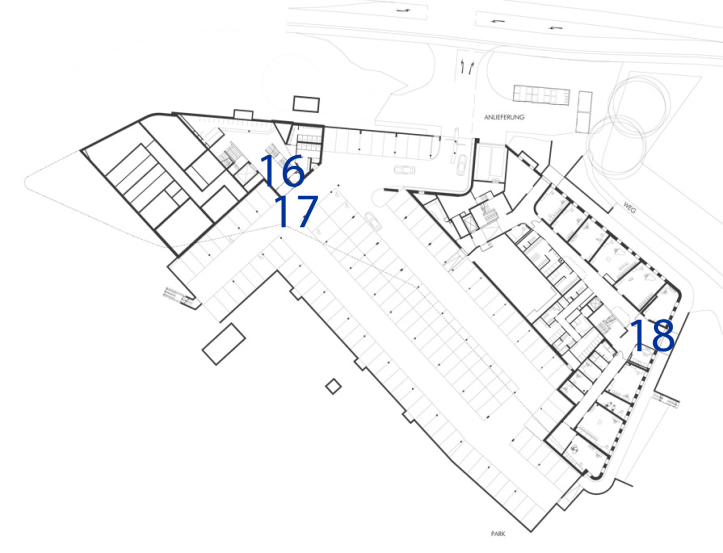
the architectural plan of the Anton Bruckner Privatuniversität

[floors -1 to 2]
1: SLIGHT IRREGULARITIES
2: YELLOW STAINS
3: METAPHORS FOR SOUNDS
4: CONSTRUCTION SITE
5: REARRANGED ELEVATOR
6: ONLY LISTENING 1
7: COUNTING STEPS
8: INNER VOICE
9: VIBRATING BENCH
10: REAL AND IMAGINED
11: HIGH AND HARSH
12: MELODIC THREADS
13: FOR THE BRAVEST
14: UNDERGROUND MUSIC
15: GOING UP
16: INSIDE, OUTSIDE, IN-BETWEEN
17: DANCING SERVERS *floor -2, not -1
18: ONLY LISTENING 2
additional sounds and (incomplete) texts
CONSTRUCTION SITE
enter the library and [...]. open the envelope and you will see seven different photos of the same construction site. try to imagine the sounds you would hear if you were there. take a closer look at each photo, and based on the differences between them, imagine seven variations of the sounds you have previously imagined. spend at least half a minute on each photo.

[the photos in the envelope were by Jonas Vogel.]







ONLY LISTENING 1
enter the room and listen to the sounds coming from behind the curtain. stay there for a while.
[a 4-channel version of 7iS-iSSx1_arm-GP (4 loudspeakers were placed behind a curtain in one of the practice rooms). note that shortly after the university’s Tag der offenen Tür had begun, i was told that it disturbed an open violin lesson, and that the violin professor instructed to turn off the loudspeakers. afterwards, students repeatedly turned off the loudspeakers because they wanted to practice in the room.]
COUNTING STEPS
for each step you take, [lower/raise] the pitch and [increase/decrease] the loudness of the sound you imagine.

INNER VOICE
[...] until you reach lockers from which a low engine-like sound and a high chirping-like sound are heard. [...] stand in front of the locker from which the sounds are heard and imagine a rich tone whose pitch is determined by the locker at which you are looking. lockers on your left should produce low pitches (but still above the low sound) and lockers on your right should produce high pitches (but still below the high sound). [...] imagine that looking at a locker does not change the pitch of a single tone but rather adds a new tone of a different pitch, corresponding to the position of the locker, sounding simultaneously with the old ones, so that the number of tones sounding simultaneously is continuously growing. continue looking at different lockers until a thick loud cluster is heard. when there is no more room for new tones [read on.]
[loudspeaker 1: “a low engine-like sound” produced by placing the handle of the bent frothing wand on a thin wooden strawberry tray. loudspeaker 2: “a high chirping-like sound”, a recording of me blowing into an altered recorder mouthpiece in which a tubular balloon whose closed end was removed extended the mouthpiece and an electric frothing wand whose stick was slightly bent was hitting it (the balloon). note that at the beginning, i did not lock the lockers in which the loudspeakers were placed. shortly afterwards, however, i discovered that someone had turned off the loudspeakers and decided to lock the lockers for the rest of the event.]
GOING UP
enter Stiege 1 and walk up the stairs to floor 1. as you go, clear your mind and pay attention to the sounds around you.
BUMP REMINDERS
[...]
AGITATED RUBBING
[...]
WHITE-NOISE-LIKE
[...]
CHAOTIC SQUEAKS
[...]
JERKY CHIRPS
[...]
note that a considerable number of texts were based on texts from MUSIC FOR ONESELF v1: LONG CREAKS, BURST OF NOISE, REAL AND IMAGINED, FOR THE BRAVEST (on BREATHING WALLS), MELODIC THREADS, REARRANGED ELEVATOR, DULL NOISE, SHORT SQUEAKS, SMALLL INTERVALS, BUMP REMINDERS, AGITATED RUBBING, and JERKY CHIRPS.
finally, below is a photo of the loudspeakers that were used. 15 of them were ANKER SoundCore mini, 1 was ALLEK, 1 was JAY-tech SA101, 1 was ZEALOT S5, and 1 was Lychee Wireless Speaker.



